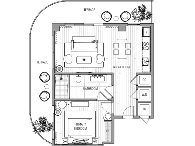
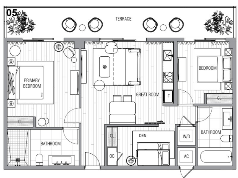
Natiivo Fort Lauderdale

Desde USD 615,000

Fort Lauderdale ,33311 ,Florida








Solicita más información

TEAM HOMES DORAL

+1 305 310 9630

+1 305 310 9630

info@homesdoral.com

EXP REALTY LLC

National Association Realtors

miami realtors

floridarealtors